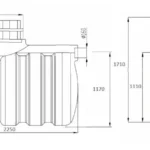
DELFIN SBRmadPRESTIGE biopuhasti
Delfin SBRmadPRESTIGE on kompaktne aktiivmudapuhasti. See koosneb kahest kambrist- eelpuhasti, bioreaktor. Biopuhastis toimub õhustus- ja puhastusprotsess. Orgaanilise aine lagundamine toimub aeroobses keskkonnas. Aeroobse keskkonna tekitab õhustussüsteem, mis koosneb automaatikakilbis paiknevast õhukompressorist, õhutorudest ja bioraktori põhja paigaldatud difusaatorist. Puhastusprotsessis tekkiv üleliigne muda pumbatake õhu abil järelsetiti osast välja.
DELFIN SBRmadPRESTIGE komplekti kuulub:
- Biopuhasti korpus koos liitmikega
- Hooldusluuk 1 tk
- 300 mm kõrgendus koos õhuvoolikute läbiviiguga 1 tk
- Maapealne juhtseadme kilp
- Elektriline juhtseade ja õhukompressor
DELFIN SBRmadPRESTIGE eelised:
- CE sertifikaat, vastab standardile EN 12566-3
- Kahekambriline: eelsetiti ja bioreaktor.
- Monoliitne korpus- pole liitekohti.
- SBR (annuspuhasti) tehnoloogia.
- Madal elektrikulu: 0,17 kWh/päevas ühe inimese kohta
- Kõrge puhastustulemus.
- Materjaliks on HDPE, kõrge tihedusega polüetüleen.
- Korpus on tugev ja korrosioonikindel.
- Biopuhastis puuduvad sisemised liikuvad osad, mida tuleks jälgida ja vajadusel välja vahetada.
- Lihtne hooldada.
- Lihtne transportida ja paigaldada.
Allalaetavad failid



